ЖК «Домодедово Парк» расположен в живописном месте на берегу реки Пахры. Жители микрорайона смогут в полной мере оценить это преимущество – набережная будет благоустроена для прогулок, пикников и занятий спортом.
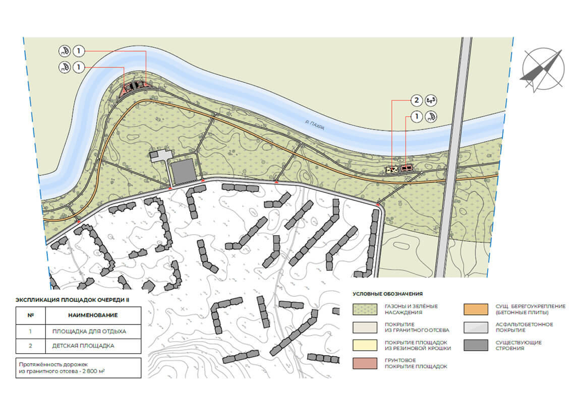
Застройщик ЖК «Домодедово Парк» разработал концепцию благоустройства набережной Пахры. Вдоль реки планируется создать зону для прогулок с велодорожками, детскими и спортивными площадками. Также предусмотрена площадка для выгула и дрессировки собак.
Информацией о этапах благоустройства набережной мы будем делиться на сайте и в социальных сетях. Следите за новостями!


Разработана концепция благоустройства набережной реки Пахры
14 декабря 2022